PROFITIEREN SIE VON UNSEREM KNOW-HOW
Jedes Objekt hat seine Eigenheiten, örtliche Gegebenheiten müssen berücksichtigt werden - Die Planung eines jeden Projekts ist umfangreich und muss immer überdacht werden.
Mit unseren inspirierenden Referenzobjekten zeigen wir Ihnen besondere Details und gestalterische Möglichkeiten einer bewährten Verlegetechnik direkt am Objekt.
Unser Team der Anwendungstechnik, bestehend aus Handwerksmeistern, Architekten und Bauingenieuren steht Ihnen gerne beratend zur Seite. Gerne überlegen wir mit Ihnen zusammen, wie die optimale Lösung für Ihr Bauvorhaben aussehen kann und stellen Ihnen CAD-Zeichnungen und passende Ausschreibungstexte zur Verfügung.
Nutzen Sie des Weiteren unser Netzwerk an Fachhandwerksbetrieben, die bei der anschließenden Umsetzung des Projektes notwendig sind.
Wählen Sie Ihre passende Referenz
GEMEINDEZENTRUM KLEINMACHNOW
Der ehemalige Gutshof in Kleinmachnow bringt reichlich archäologische Geschichte mit sich. Der Bau eines Gemeindezentrums auf dem Grundstück dient nun dem Gemeindeleben des Ortes und gewährt zudem Einblicke in die Vergangenheit. Um das Erscheinungsbild harmonisch abzurunden, wählten die Bauverantwortlichen RHEINZINK-prePATINA schiefergrau. Das edle Material fügt sich gekonnt in die Umgebung ein und garantiert Langlebigkeit und Wartungsfreiheit.

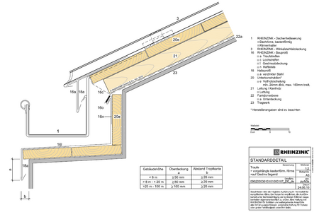
Traufe
Traufe mit auf Gesims liegender Rinne
Ortgang
Ortgang ohne Aufkantung
First
Flache Sattelfirstausbildung entlüftet
Wohnhaus Rodgau
Von Kirche zum Wohnhaus: Umbau mit RHEINZINK Titanzink. Die gestalterische Klammer, die das gesamte Ensemble architektonisch zu einer Einheit zusammenfasst, bildet der Werkstoff Titanzink. Die Dächer und die Dachentwässerung wurden ebenso mit RHEINZINK-prePATINA schiefergrau ausgeführt wie die Fassadenbekleidung an einer Turmseite und an zwei Erkern. Die ehemalige Kirche der Gemeinde Nieder-Roden dient nun als Wohnhaus in ganz besonderem Charme.

Traufe
Traufe mit vorgehängter Rinne
Ortgang
Ortgang ohne Leiste
First
Pultfirst
Trumpf GmbH
Die Gemeinde Neukirch erlebt seit einigen Jahren eine erstaunliche Reindustrialisierung. Einen wesentlichen Beitrag dazu leistet der Werkzeugmaschinenhersteller „Trumpf“. Im Zuge einer Sanierung des Firmenkomplexes kam RHEINZINK-prePATINA schiefergrau zum Einsatz. Die Haut aus den Zinkblech-Grossrauten fasst drei Gebäudeteile zusammen: eine um 1900 errichtete Remise, einen Anbau aus den 80ern und einen 30 Meter langen Neubau, welcher den Bestandsbau auf insgesamt 115 Meter erweitert.

Traufe
Großraute - Traufe mit vorgehängter Rinne - dachintegriert
Ortgang
Großraute - Ortgangausbildung mit Rinne
First
Großrauten - Sattelfirst entlüftet
Wir sind für Sie da
Unser Team aus Handwerksmeistern, Architekten und Bauingenieuren
Martina Dietrich-Prange, Ivonne Seiler, Wendy Lichtenberg, Frank Pfotenhauer, Christof Henkelüdecke
Zentrale Ansprechpartner für Handwerk und Planer für technische Beratung, Planung und Ausführung
Telefon: +49 2363 605-490
E-Mail: anwendungstechnik[at]rheinzink.de

































